
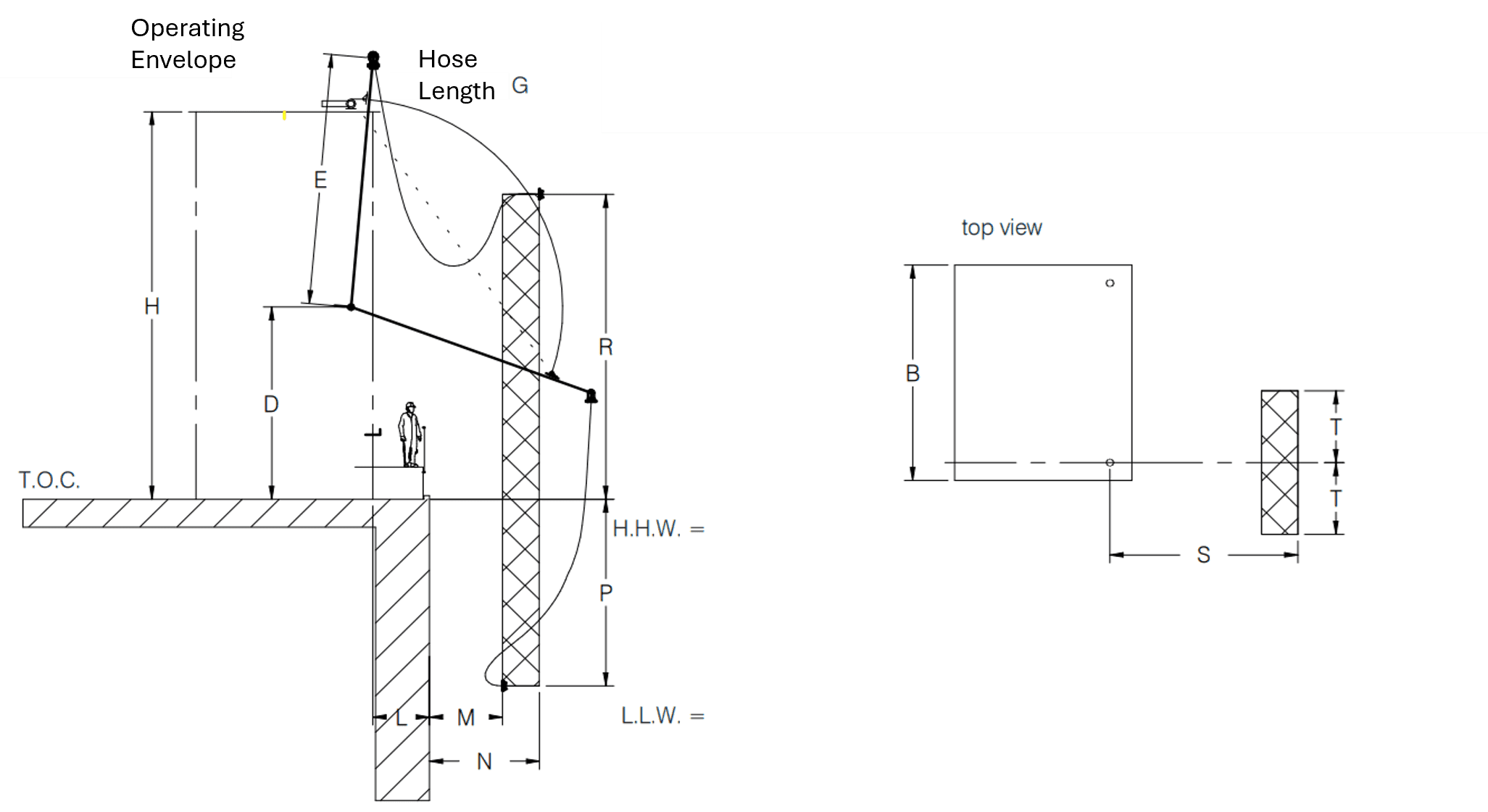
Hose Tower Systems
Standardize jetty/pier/dolphin operations with safe, fast, and controlled hose management.

MEGA, MEGA offers Hose Tower solutions for safe management of flexible hoses used in jetty/pier/dolphin lines (loading-unloading) during vessel connection, handling, and operation.
The solution is an integrated structure consisting of a steel construction tower, hose handling system, lifting mechanism (telescopic/articulated), hydraulic cranes, and auxiliary equipment supporting the operation.
What does it solve?
- Multi-hose management: Facilitates product/line variability by managing multiple hoses on the same tower in an organized and controlled manner.
- Shortening operation time: Improves docking/operation flow thanks to setups that speed up hose maneuvering.
- Safety and ergonomics: Reduces risks with controlled movement during hose transport, correct support, and accessories that increase operator safety.
System Components and Options
Hose Tower designs typically consist of: steel structure + lifting system + hose support/handling elements + safety and operation equipment.
Options according to needs:
- Remote control / local control
- Operator cabin/room
- Lighting, camera, drip pan
- Fire fighting equipment integration
Certification
Solution Types
We select the appropriate type from the following based on site constraints (tides, pier geometry, free space, vessel diversity, number/diameter of hoses, wind loads) and operational habits:
1- Conventional Hose Tower
Classic tower architecture; built on functions of organized stacking of hoses and controlled lifting/lowering. It is a solution with a strong cost-benefit balance in standard and common pier layouts.
2- Hybrid Hose Tower
When site conditions are more challenging; hybrid approaches that increase mobility and reach capability are preferred (design selection is made according to vessel diversity and maneuvering requirements).
3- Integrated Hose Tower
An approach where the tower is handled more integrally with platform, carrier frame, equipment placement, and (when necessary) control/operator functions. It is frequently preferred in large terminals for standardization and ease of maintenance.
4- Knuckle Type Hose Tower
Articulated architecture provides advantages in operations with high reach-angle requirements, difficult placement, or variable vessel board geometry; it is set up with the aim of 'transporting' the hose more easily to the target area.
Note: Type selection should be made with **field data**, not 'brochure selection'. Therefore, MEGA evaluates each project together with pier dimensions, hose technical specifications, vessel dimensions, environmental loads, and operator scenarios.
MEGA Approach
End-to-end Engineering
MEGA manages the process from concept to mechanical & electrical design, strength calculations, documentation, FAT/SAT, field assembly, and commissioning.
Automation and Digital Integration
The Hose Tower project should be considered together with terminal automation, interlock, operation records, and maintenance plans. MEGA configures the system to integrate with SCADA/DCS if needed.
Lifecycle Support
We ensure the solution's longevity with maintenance/service plans, periodic checks, critical spare parts approach, and operating procedures.
Typical Project Flow
Field & operation data collection (pier dimensions, vessel types, hose count/diameter/length, tides, wind)
Concept selection (conventional / hybrid / integrated / articulated)
Detailed engineering + calculations + Layout + safety functions
Manufacturing + Factory Acceptance Test (FAT) + shipment to site
Field Assembly + Site Acceptance Test (SAT) + commissioning + training and documentation
Minimum Information Required for Proposal
- Desired hose count, product type (liquid/gas), hose diameter/length/weight
- Pier elevations, vessel board working range, tide range
- Electrical/ATEX requirements, control philosophy (local-remote, SCADA/DCS)
- Desired options (camera, lighting, drip pan, fire equipment, etc.)
Hose Reel Systems
Ensure controlled, safe, and ergonomic hose management for fluid and vapor transfer operations.
MEGA offers Hose Reel solutions for the safe winding, unwinding, and controlled management of flexible hoses used in pier, filling station, and terminal applications.
Hose Reel systems increase operator safety, extend hose life, and ensure orderly and efficient execution of loading and unloading operations.
What Does It Provide?
- Controlled winding and unwinding of hoses
- Order and safety in the operation area
- Shorter operation times
- Reduction of hose kinking, friction, and damage
- Reliable solution in Vapor/Gas Recovery applications
System Components and Options
- Steel body and drum structure
- Manual, electric, or hydraulic drive
- Hose guide mechanism
- Locking and safety systems
- Support arm (fixed / telescopic / articulated)
Usage Areas
- Marine terminals and pier applications
- Tanker loading-unloading stations
- Chemical and petrochemical plants
- Vapor recovery (VRU) systems
Solution Types
We select the appropriate type from the following according to site constraints, hose number/diameter, and operation habits:
1- Standard Hose Reel
Classic hose reel solutions designed for single or multiple hose applications with fixed or mobile mounting options. Wildly used in fuel, chemical, and industrial fluid transfers.
2- Telescopic Hose Reel
Offers a wider reach area thanks to its telescopic arm structure. Preferred in limited spaces or applications requiring adaptation to different ship/vehicle positions.
3- Vapor/Gas Recovery Hose Reel
Special hose reels designed for the safe recovery of vapors generated during filling. Critical for emission control, environmental compliance, and operational safety.
4- Custom Design Hose Reel Systems
Solutions designed specifically for the project according to hose diameter, length, product type, and site conditions. MEGA performs mechanical design and integration according to process requirements.
MEGA Approach
Engineering Oriented Design
Each hose reel system is designed considering hose weight, working radius, wind loads, and operation scenarios.
Automation and Integration
When necessary, hose reel systems can be integrated into terminal automation, interlock, and SCADA/DCS infrastructures.
Lifecycle Support
MEGA manages manufacturing, FAT, site assembly, SAT, commissioning, and maintenance-service processes end-to-end.
Sustainability and Maintenance
We ensure the solution's longevity with maintenance/service plans, periodic checks, critical spare parts approach, and operating procedures.

Typical Project Flow
- 1Field & operation data collection (pier dimensions, vessel types, hose count/diameter/length, tides, wind)
- 2Concept selection (conventional / hybrid / integrated / articulated)
- 3Detailed engineering + calculations + Layout + safety functions
- 4Manufacturing + Factory Acceptance Test (FAT) + shipment to site
- 5Site Assembly + Site Acceptance Test (SAT) + commissioning + training and documentation
Minimum Information Required for Quote
- Desired hose number, product type (liquid/gas), hose diameter/length/weight
- Pier elevations, vessel board working range, tide range
- Electrical/ATEX requirements, control philosophy (local-remote, SCADA/DCS)
- Desired options (camera, lighting, drip pan, fire equipment, etc.)

